钢筋加量点:承台/柱墩侧壁竖向钢筋锚固算量
施工技术钢筋优化专家
官方认证权威媒体作者
2025-10-09
|
6271阅读
5
赞
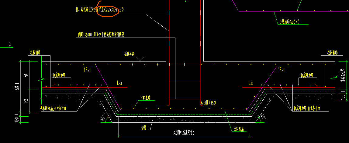
对于柱墩、带筏板时的板式承台/三桩承台/梁式承台(不包含笼式承台),涉及到底筋上返与筏板底筋互锚的做法问题。此外,筏板变厚度、筏板高低跨、集水坑、筏板结构水沟等结构构造,也存在“互锚构造”。
在图集中,对于柱下筏板局部加厚、筏板变截面等给出了“互锚做法”,侧壁竖向钢筋均显示为锚固la入筏板。

问题的引出:对于不同筏板厚度、柱墩/承台主筋直径、砼强度、柱墩/承台结构底部角度情况下,侧壁钢筋在筏板内可能不足直锚、导致出现了不同的水平弯折尺寸(总长按la的原则),最小可能出现5mm的尺寸,从钢筋加工角度是不现实的。

目前大部分项目图纸是按图集的表达方式,只标注满足la。有部分项目图纸是按固定的钢筋水平弯折尺寸进行表达的(150/200/250/15d/10d/20d等不同数据,但未表达和总长la双选),有个别的图纸表达的各种情况比较准确。



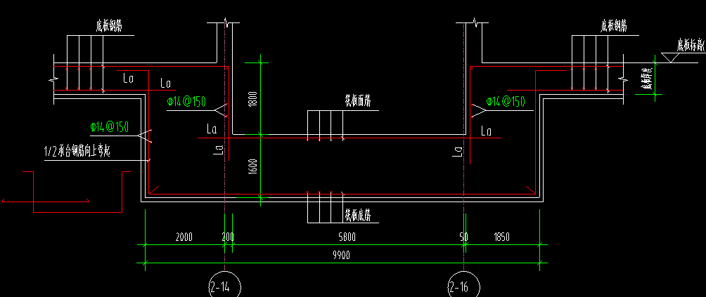
如下项目图纸及说明,表达的做法较为准确:


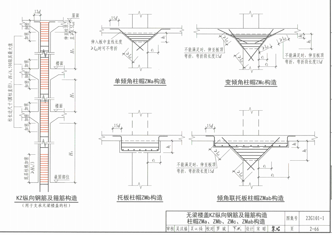
关于钢筋水平弯折尺寸问题,从图集的角度不同类型钢筋锚固存在10d、12d、15d的弯锚尺寸,从钢筋加工的角度一般最小10d弯折长度可加工。参照图集(22G101-1第P2-66页)中柱帽的钢筋锚固做法,明确了直锚不够时需要弯折15d,柱墩实际上也是反柱帽的受力原理,可以此为由确定需要柱墩/承台主筋水平弯折时按15d进行设计施工。

从受力实际需求角度分析,筏板是以柱墩/承台为支座进行锚固,筏板并不是柱墩/承台侧壁钢筋的支座,只是需要与筏板底筋形成互锚的受力概念。

原则上来说柱墩/承台侧壁钢筋在底板内的整体锚固强度(受力大小)不低于筏板底筋的锚固强度即可,一般筏板底筋直径较小、柱墩/承台主筋直径较大,因此从原理上侧壁钢筋并不需要按la长度进行互锚。前述章节也探讨过侧壁钢筋最低可单独按筏板底筋(含柱墩板底周围的附加筋)的参数进行配置,保证受力强度的同时也避免筏板底根部开裂的问题。有些epc项目为降低造价,对柱墩/承台侧壁单独按筏板底筋参数进行定义配筋,此时需要按la长度进行互锚、整体互锚锚固强度相等。因此,也出现了个别项目按柱墩/承台侧壁钢筋垂直伸到板面、并未要求要达到总长la。
在施工翻样优化时,当直锚不足la需要弯折时,可以适当降低钢筋垂直段长度、以保证水平弯折段不至于过短无法施工,以及按总长la的原则降低垂直段长度、增加水平弯折段长度,但是需要保证垂直段不小于0.6labe及20d。
其他:①可以积极利用锚固长度*0.7系数的做法;②按图集(18G901)垂直柱墩是从砼面起算锚固长度,斜面柱墩是从钢筋交叉点起算锚固长度,为扩大计量工程量也有项目将垂直柱墩确认为钢筋交叉点起算锚固长度;③根据项目图纸表达方式或提前进行绘制表达,将侧面只能水平弯折长度按la进行“理解”;④可利用钢筋等面积代换的原则,将柱墩/承台底筋降低直径、或者按不等直径钢筋间隔放置并隔一上返,降低侧壁钢筋的锚固量。



总而言之,柱墩/承台等类型的底板内钢筋交叉锚固问题,是很多项目存在的通性问题,需要对此做法提前做好策划。
以上内容来自于《钢筋优化手册》(钢筋工程降本增效及易错点解析),更多关于钢筋优化及算量相关的问题,可添加作者微信shigongjishu666进群探讨,也欢迎进qq群954435432免费下载技术资料。
共28条评论
中建系统超10年科技技术及钢筋优化算量从业经验
已发表20篇文章
头条热榜 换一换
- 造价效率翻倍!造价师AI提效:保姆级提示词库--全过程造价咨询最爱(进度款、计量、对账),附可直接复制的模板
- 管道支架不漏算—安装造价一键提速
- 造价人AI实操手册:从“知道”到“用起来”
- 2026年工程担保与质保金新政深度解读与实战指南
- 1 2026年清欠新政下,聊聊我们搞造价的、管成本的,该怎么打好这场现金流“保卫战”。
- 2 5个神技巧!安装工程新定额套价干货
- 3 【GDQ2026-装饰算量城更版-焕新而至】以精度致匠心,解锁造价建模效能新标杆
- 4 重构·变革·升级·厘清·整治——2026年工程造价行业转型五大关键词深度解读与实战指南
- 5 施工单位抬高工程造价6大手段,全是审计要点
- 6 打破“审计即讨债”魔咒:2026年审计流程与管控模式升级深度解读与实战指南
- 7 好消息!造价人又增加一个新证书,建议提前准备
- 8 财政部10号文落地:甲供材“宽松简易计税”终结,成本命脉再调整
- 9 造价人必看!工程预结算 15 条高频争议,一次讲透
- 10 造价效率翻倍!造价师AI提效:保姆级提示词库--甲方最爱(概估算篇)附可直接复制的模板
- 11 90% 造价人都懵:安装脚手架、操作高度、超高增加费到底差在哪?
- 12 2026招投标新政落地!5大文件划清10条红线
- 13 市政工程土石方系数换算 重难点解读
- 14 施工单位必看!钢筋算量5大易漏项核心解析
- 15 “定额”退场,谁来接棒?——工程造价市场化改革元年深度观察与实战指南
- 16 人社部:职称评审即将迎来大改!
- 17 工程结算“只审减不审增”的核心法律问题
- 18 审计揭秘:高估冒算、重复计价、漏项——结算审计三大“利润杀手”深度解析与避坑指南
- 19 一造打大咖李毅佳:跟我学一造,先来领资料
- 20 土方倒运计价:为什么清单“含”了,定额却只“给”5m?一文搞懂土方倒运的计价逻辑与争议解决
- 21 建筑面积计算:合同与国标打架,到底该按哪种算?
- 22 新手做造价老是漏、错、慢?掌握这些技巧帮你提高效率!
- 23 告别“定额依赖”,拥抱“市场定价”——GB/T 50500-2024新版清单实战应用深度解读
- 24 全网热议的“养龙虾”热潮,造价人怎能缺席?3月27号周五见!
- 25 土方量计算你学会了吗?
- 26 钢材材质Q235B和Q355C的含义是什么?你知道吗?不同牌号价格差异有多大?
- 27 为什么说26年是一造最简单的一年?
- 28 市政工程土石方系数换算
- 29 2026年行业价目表出炉!揭秘!价格原来是这样定的
- 30 八部门联合发布,2026招投标新政要点总结
- 31 【曝光】月薪过万的造价师都在用的算量方法
- 32 告别“定额依赖症”:24新清单背后的市场化镇痛与重生
- 33 告别“套定额”,学会“算市场”——定额市场化改革后如何组价、报价、审价实战指南
- 34 告别手算!安装造价提效神器
- 35 工程结算失真的 8 个真正原因,掌握这些再也不用扯皮了
- 36 土建算量注意事项(从计算设置到构件绘制,全方面解析)
- 37 签证单被退回三次后,我重新思考了造价这条路
- 38 合同纠纷这8大坑,注意啦,别再被坑
- 39 投标文件未响应实质性要求,这也能中标?
- 40 工程造价信息中的材料与实际采购不符,结算如何调整?
- 41 造价成果有了“专属身份证”
- 42 甲方土建工程师与乙方施工员的区别在哪里?
- 43 广联达精准算量技巧:柱子最容易出错的3大高频问题
- 44 从入门到精通!安装造价强电、弱电、给排水要点全攻略。
- 45 【干货】最全工程造价审计的流程与技巧,建议收藏!
- 46 造价工程师专属 AI 提效提示词库(建议收藏备用)
- 47 零基础学员先从给水系统的概念、分类及组成学习起!
- 48 造价人必须知道的速算小技巧(钢筋网片、钢管、镀锌钢板)
- 49 实名制动真格!造价行业迎来“三重洗牌”
- 50 40个工程造价的难点问题!终于整全了!