同轴电缆工程量计量
CAD快速看图
2025-12-18
|
2915阅读
2
赞
同轴电缆工程量计量
同轴电缆作为传统有线电视系统的主要传输介质,其结构包含内导体、绝缘层、外导体(屏蔽层)以及保护套,具备出色的抗干扰性能。可以借助CAD快速看图【批量测量】同轴电缆总长,文字查找定位管线与设计点,实现从“线”到“点”的高效精准全局计量。
一、基础知识
同轴电缆是指有两个同心导体,而导体和屏蔽层又共用同一轴心的电缆。有线通信系统中大量使用同轴电缆作为传输介质,同轴电缆性能的好坏,将直接影响到系统的质量。
同轴电缆由同轴结构的内外导体构成,芯线为单股或多股铜线,外包绝缘物,绝缘物外面为用金属丝编织网或金属箔,最外面用塑料护套或其他特种护套保护。
电缆的芯线越粗,其损耗越小。长距离传输多采用内导体粗的电缆。同轴电缆的损耗与工作频率的平方根成正比。电缆的衰减与温度有关,随着温度增高,其衰减值也增大。

我国对电缆型号的符号标注由四部分组成,如图1.4.2所示。

电缆名称代号、绝缘材料代号、护套材料代号见表1.4.12。

目前有两种广泛使用的同轴电缆,一种是502电缆,用于数字传输,由于多用于基带传输,也叫基带同轴电缆;另一种是752电缆,用于模拟传输,也叫宽带同轴电缆。使用有线电视电缆进行模拟信号传输的同轴电缆系统被称为宽带同轴电缆。在计算机网络中,宽带电缆是指任何使用模拟信号进行传输的电缆网。
同轴电缆的带宽取决于电缆长度。1km的电缆可以达到1~2Gbit/s的数据传输速率。还可以使用更长的电缆,但是传输率要降低或使用中间放大器。目前,同轴电缆大量被光纤取代,但仍广泛应用于有线电视和某些局域网。
二、清单计量规则

三、案例分析
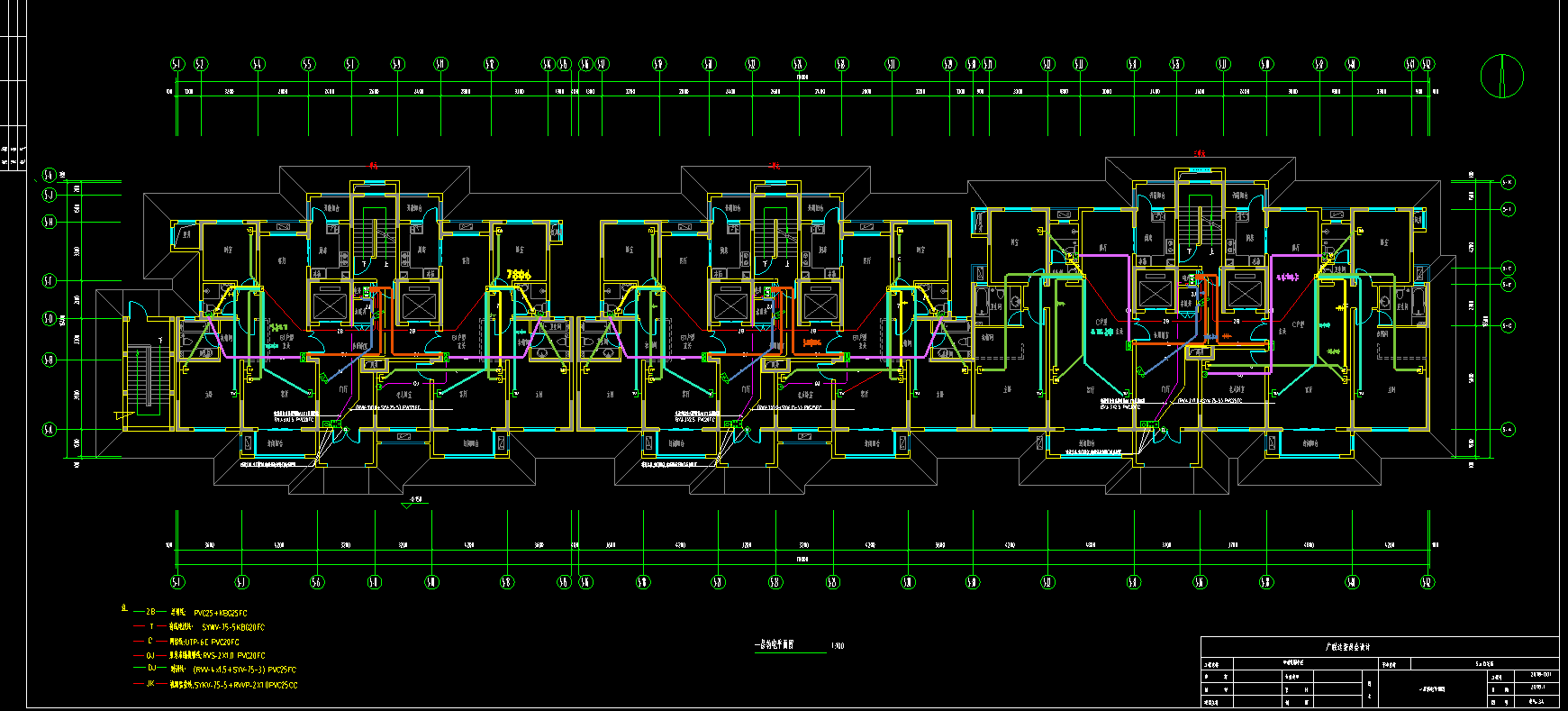
1.观察一层弱电平面图及主要设备材料表,同轴电缆规格型号为SYKV-75-5,彩色视频摄像机采用吸顶安装。


2.由于一层弱电平面图中管线错综复杂,为快速定位视频监控线,可借助CAD快速看图的【文字查找】功能输入“JK”进行查找,查找区域设定为一层弱电平面图,结果将自动标注小红旗。

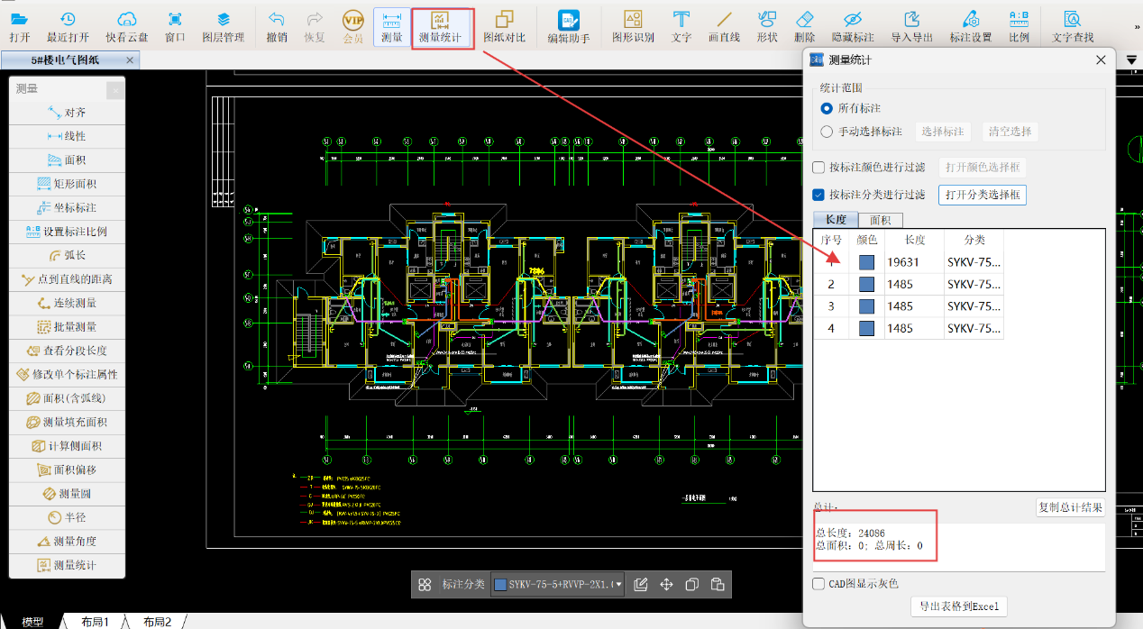
3.使用【测量】菜单下的【批量测量】功能,勾选“按已选线段图层过滤”选项后快速选定视频监控线;断开处利用“画线”工具补全,选中线段呈现亮黄色,右键点击即可自动标注。需注意,标注2JK的管线包含两根同轴电缆,因此需重复测量两次。
所有视频监控线测量完成后,通过【测量统计】功能按标注分类汇总,如图所示,水平同轴电缆工程量为24.086米。


4.对于竖向同轴电缆,因彩色视频摄像机吸顶安装无需竖向布线,电井处同轴电缆沿桥架延伸至负一层,按一层层高3米计算,故竖向同轴电缆长度为3米乘以3根,总计9米。
总工程量计算为水平同轴电缆24.086米加上竖向同轴电缆9米,合计33.086米。
同轴电缆工程量依据设计图示尺寸,以长度(米)为单位计量。借助CAD快速看图【文字查找】与【批量测量】,进行完整的工程量计量,显著提升工作效率。
#同轴电缆#文字查找#批量测量#CAD快速看图
共28条评论
好用的、轻量级DWG看图软件!
已发表879篇文章
头条热榜 换一换
- 机上人员工资的计价归属:人工费还是机械费?
- 只会算量套价危险了!一线造价员稳住位置的3条“护城河”
- “十五五”开局暴涨的三大证书
- 暂列金额、暂估价、预备费,工程造价三个费用你理解透彻了吗?
- 1 干混砂浆的容重到底是多少?背后的成本问题你思考过吗?· 假如我是解答人系列之(12)
- 2 24清单-总价包干合同清单缺陷责任究竟归谁?
- 3 给造价同行们的真心话:活儿再急,清单也不能掉链子!
- 4 签证单上的“魔法数字”:甲方代表为何总爱写“暂估”
- 5 “文明施工”不是泛泛而谈,而是有明确的10大项56小项内容!
- 6 一级造价师各科章节练习题汇总(完整版)
- 7 24版清单标准中措施费包干是个坑,投标人对缺漏项可增补,假如措施项缺漏100多万元怎么办?
- 8 一根小小对拉螺栓看施工与预算的关系 · 假如我是解答人系列之(13)
- 9 是防水?是找平?还是抹灰?防水砂浆到底执行什么定额?· 假如我是解答人系列之(十一)
- 10 重磅拆解|十五五20万亿城市更新落地,倪虹定调4大红线+5大投向,民生与行业双受益
- 11 定额工程量和清单工程量有什么不同?
- 12 图纸显示不全?十大高频问题与解决方法汇总(上)
- 13 一觉醒来全世界造价水平下降一万倍
- 14 审计局的“显微镜”:一份发票如何推翻整个结算
- 15 定额组价既然偏离市场价,为何还不废除?
- 16 监理的“善意提醒”:隐蔽工程验收中的信任陷阱
- 17 实体工程计量争议的常见类型与判定要点
- 18 如此算伸缩缝和切缝工程量,真的嘎嘎好用
- 19 给排水工程计算实例技巧汇总
- 20 凭什么不计算新建工程加气块的开槽费用?
- 21 你以为利润是“省”出来的?不,是被“漏”掉和“错”没的
- 22 终于!2026年一级造价工程师考试时间确定!
- 23 工地上的8类钢筋,你分得清吗?
- 24 建筑工地“九牌一图”,你都知道是什么吗?
- 25 为什么住宅楼一般建到33层就不建了?
- 26 施工合同无效时价款结算的27条宝典
- 27 核量速度快了10倍?一线造价员亲测:未来必备的3个数字工具真能少加班!
- 28 湖北率先“炸掉”定额!2026新规震撼建筑业,企业生死大洗牌
- 29 害人的税率
- 30 24清单标准实施后大家还有什么牢骚要发
- 31 刚入行的小白一定要知道的“造价审计流程及技巧”
- 32 某新型住宅地下独立车库线缆计算技巧分享
- 33 什么是桩?桩有什么作用?
- 34 甲方催新清单?别慌!一线造价员用上这份‘湖北打法’指南,又快又准!
- 35 官方发布!持一造证书可领取90000元补贴!
- 36 纯干货分享、对代理公司用处极大:如何才能编制一份规范的工程量清单和最高投标限价
- 37 墙面瓷砖的倒角和地面瓷砖拼花对装修预算的有什么影响
- 38 干货分享:钢筋和混凝土能按暂估价材料处理吗?
- 39 大道至简,一张塑料薄膜对做造价的启示
- 40 结算、决算、施工签证、工程量、审计计算难点解答汇总
- 41 24清单计价模式下如何编制招标控制价
- 42 投标9%税率结算3%开票:6%税点扣除的法律与实务辨析
- 43 10次工业项目,有九次预算失真:问题不在现场,而在....
- 44 水利水电常用知识点
- 45 如何控制工程造价全过程
- 46 合同争议轻松解决,再也不怕领导啦~
- 47 实体工程计量争议案例剖析:避开计量“雷区”
- 48 工程造价中被打脸的工序操作
- 49 有一种大神:可以不用电子版CAD图纸做造价
- 50 造价过程中的这些“价”你都搞清没?