软件下载
线下培训
软件教程
智能客服
购买咨询
建筑课堂
答疑解惑
新干线头条
资料下载
技能大赛
答疑专家入驻
课程讲师入驻
行业媒体入驻
设计专区
造价专区
施工专区
联系我们
合作推广
隐私政策
喻喻吖 2025-03-24 20:14:34 | 江苏 土建 | 179查看 2回答
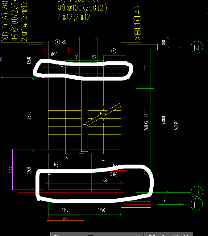
还是没有,把板上面的负筋底筋面筋布置了,只有一个L1(1)?
我的答案 答题人必看《优秀回答指南》
asfsdfsadfdsf
补充或更正我的问题
完善我的答案 答题人必看 《优秀回答指南》
全部回答 (2) 首答仅用{{minutesHtml}}
陈工 铂金专家
答题: 212018 被赞: 51257
看剖面图的,可能性有梁的。
2025-03-24 20:20:45
欢乐心中飞雪 铂金专家
答题: 143713 被赞: 46564
此处不是L1
应该是结构梁的
2025-03-24 20:17:25
分仓缝
一种地面有N个工序,我是建一个地面包含这么多工序吗,还是单独按工序建?1.里面有钢筋的 能不能像建现浇板一样建?2.还有防水需要上翻,需要单独建吗?3.这个分仓缝怎么理解,柱子间距大于6m,我是在哪个位置分,画的时候改怎么画,麻烦将详细点,没布过装修。
急急急!!二结构拉结筋问题和通长筋
二结构砌墙的时候,苏02-2011图集是这样写的砌体填充墙应沿框架柱每隔500~600mm设2A6拉筋,拉筋伸入墙内长度L1;6、7、8、9度时宜沿墙全长贯通。 第一个问题:规范里面所说的每隔500~600设置2A6拉筋,这个拉筋是不是就是柱子浇筑后预留在框架柱的预留钢筋吗?如果是的话,那我这个L1的长度规范里面没说明,到底是多长啊,在哪里找? 第二个问题:通长我们所说的砌墙的沿墙全长布置的不是这个钢筋吧?这2根6的是在结构构件上预留的,我看现场砌墙的时候,在砌块与砌块之间放置的那根钢筋是不是墙体的通长筋?我在现场看到的这个通长筋和规范上面说的6,7,8,9,度时全长布置的是一个意思吗?为什么我在现场感觉基本砌墙都是全场布置的?说白了我就想问,砌体通长筋是不是就是那2根预留出来的在倒腾,只是抗震等级不同时,长度不一样? 第三个问题:抗震等级6,7,8,9度是怎么看的?我们图纸上一般只有结构类型,檐高,设防烈度,没看到多少度啊?怎么弄的? 小弟说的有点啰嗦了,想表达清楚点,方便高手回答,谢谢了!
钢筋计算的问题
汤老师,您好! 1、 顶层框架柱边角柱外侧钢筋长度是1.5Lae,还是梁高+柱宽-2*保护层 2、剪力墙边缘构件很长时,水平钢筋需要升入多长, 3、每一层剪力墙水平钢筋起始位置从多少算起,配置暗梁的情况下,根数如何计算,暗梁侧面钢筋直径与剪力墙水平钢筋直径不同,计算出的水平钢筋根数一样吗 4、地下室外墙钢筋是与上一层搭接还是在顶板锚固?简直嵌固和弹性嵌固有办法在图纸上看出来吗,计算时是按12D还是Lae 5、剪力墙拉筋梅花型布置是按双向数量2倍算吗,或者按照实际算? 6、剪力墙水平垂直钢筋都是C10@200,拉筋C6@600,可以梅花形布置吗,怎么布置的? 7、剪力墙非加强区的构造边缘构件,如暗柱,转角柱的拉筋,图纸未注明直径间距,按箍筋的直径间距算,还是剪力墙的拉筋间距直径算? 问题补充:超过定尺长度的搭接都按50D算不算对的? 基础插筋的弯折都按100来算对不对呢
一跨梁高低变截面钢筋编辑问题
b段梁钢筋节点三个问题(它是一跨内的变截面),我需要编辑钢筋:1.b段梁上排筋标注是锚入a段LAE 是否b段跨中钢筋同上排筋也是锚入a段LAE 2.标注中说a段有两根角筋说锚进a段,是否理解为有两个角筋深入至a段最左端的柱和梁的支座(就是贯通A段)。3.黄色里说b段除角筋外其余钢筋截断,b段梁上排筋是锚入高端梁LAE 跨中钢 腰钢也是锚入a段LAE吗还是直接和a段钢筋一根筋贯通(因为是同一跨腰底筋一样),底筋呢(我个人认为是同型号直接贯通) 我的理解是b端梁的上排钢筋锚入a段梁内LAE,跨中筋也是锚入LAE,b段其中两根角钢我再加上a段梁梁长+LAE(比如a段梁长1400,2根角筋长度就是b段梁长+a段梁长+LAE),但是腰筋和底筋我理解为贯通可以吗?
直锚和弯锚
假设C10-150的钢筋,C35二级抗震,查表得出Lae是37d(老师们问题有点多,我把我所有的情况都列举了出来,不知道对不对,麻烦老师们帮我看一下,感谢!)问题1:如果是200或300的梁,梁的宽度不够37d的,图纸并没有标注有弯折,采用直锚的话伸入梁内37*10=370,梁宽不够,那是不是只用伸进梁内(梁宽-1个保护层)的厚度就可以了?问题2:如果是400及以上宽度的梁,梁宽满足了37d,图纸并没有标注有弯折,那么这个锚进梁内的长度是不是就严格要求37d来,而不是梁宽-1个保护层了?问题3:如果是200的梁,总锚固长度是37d,图纸上标注了有15d的弯锚,那么直锚的长度37d-15d=22d梁宽还是不满足,那么是不是直锚就是梁宽-1个保护层,然后再按照图纸弯折15d?问题3:如果是300及以上宽度的梁,总锚固长度是37d,图纸上标注了有15d的弯锚,直锚37d-15d=22d也满足了梁宽,那么是不是就是严格按照规定要求,直锚22d,弯折15d?问题4:如果是200的梁,总锚固长度是37d,图纸上没有标注有15d的弯锚,那么直锚的长度是不是就是梁宽-1个保护层,剩余的用37d减去直锚的长度,然后弯折?问题5:说明上有一条:“当纵向受拉普通钢筋末端采用弯钩或机械锚固措施时,包括弯钩或锚固端头在内的锚固长度(投影长度)可取基本锚固长度的60%” 这条是什么情况下使用的,可以举例说明一下吗?2022-11-09 11:47:00 补充图中的1-1和2-2好像不是板受力筋,老师,要不你就结合一样图纸说明一下1-1的直锚,和2-2的直锚和弯折?我看下和我想象的一样不一样,上次问过老师们了,有些答案不一致,这次来做个总结,麻烦!
如果没找到您想要的答案,试试直接提问吧!
尊敬的“{{nickname}}”,您好!
答疑解惑——建筑行业领先的互动问答平台
答疑解惑——建筑业(造价行业)领先的互动问答平台
您的问题已发布您的回答已提交
大多数问题会在7分钟内获得回答,感谢您的耐心等待
恭喜获得答题积分奖励,帮助他人,成就自己。
采纳优质答案,更可获得积分,兑换礼品哦!
高质量答案更易被采纳,获得额外高额积分奖励!
专家榜
数据更新时间 : 2026-04-17
天降福运!积分,经验值等福利在等着你哟,快来签到吧
还有0条追问正在审核中,请稍后回来查看