-
LENGJING
2025-07-31 10:21:39
|
海南
土建市政公路
|
141查看
2回答
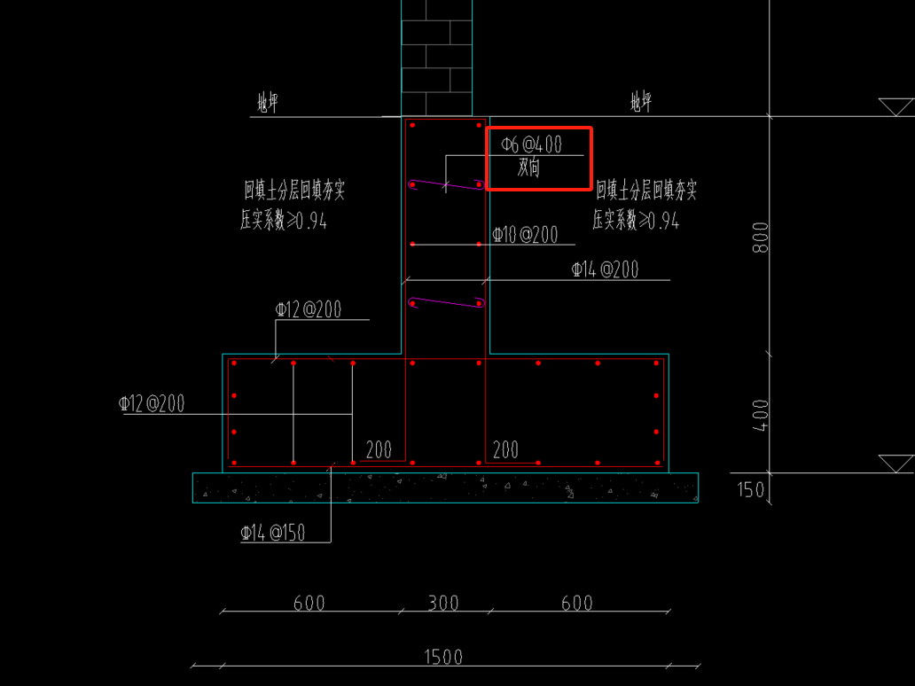
条形基础这种钢筋怎么画

全部回答
(2)
首答仅用{{minutesHtml}}
-
已采纳
这是剪力墙,用剪力墙画,底部是条基,有面筋,可以用筏板代替

首次提交 2025-07-31 10:23:47 最近修改2025-07-31 10:25:08 (修改过1次)
-
底用筏板,垂直的用剪力墙
2025-07-31 10:31:29








还有0条追问正在审核中,请稍后回来查看