软件下载
线下培训
软件教程
智能客服
购买咨询
建筑课堂
答疑解惑
新干线头条
资料下载
技能大赛
答疑专家入驻
课程讲师入驻
行业媒体入驻
设计专区
造价专区
施工专区
联系我们
合作推广
隐私政策
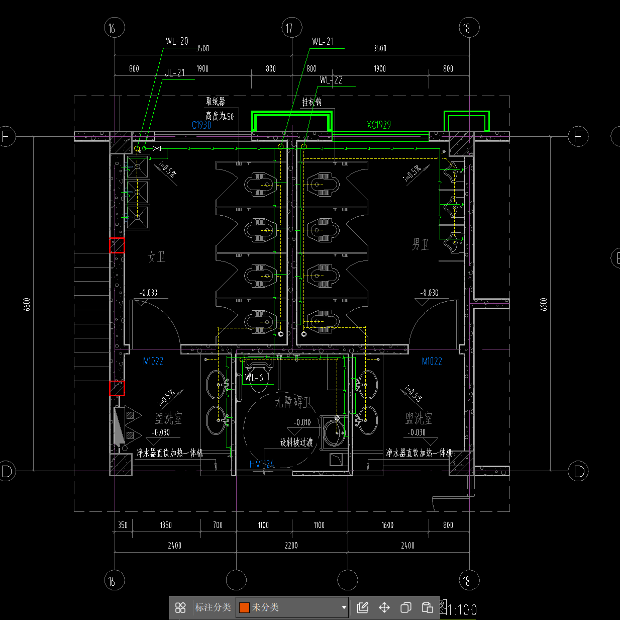
张译文 2025-09-19 18:41:29 | 重庆 安装安装算量GQI | 244查看 2回答
给水只在大样图给出了走向,在一层平面图里没给,我怎么绘制一层的给水管呢?
我的答案 答题人必看《优秀回答指南》
asfsdfsadfdsf
补充或更正我的问题
完善我的答案 答题人必看 《优秀回答指南》
全部回答 (2) 首答仅用{{minutesHtml}}
筑梦苍穹 专家
答题: 929 被赞: 328
可以把两张图纸定位点都改到卫生间角落(也就是两张图共有的点)然后在分层模式中去绘制卫生间管道,绘制完成后全部分层显示就能看到整个三维。
2025-09-19 21:26:40
worker張 专家
答题: 4831 被赞: 1164
按大样图绘制,几个卫生间一样的话乘倍数
2025-09-19 22:56:44
GQI给排水管道变径问题
本人初学识图,想请教一下各位大佬:①图中红框的那一段管道规格应该是De63还是De50的。(本人有点争议,感觉三通后变径应该是De50的,但是阀门处一般不是不设变径点么);②De40变径到De32的地方是上面红框还是下面红框,为什么呀。感谢各位大佬的回答,谢谢!
给排水管道支架表格
给排水管道支架表格,804239756@qq.com,谢谢
GQI2015 给排水管道弯头怎么识别,如图。
。
给排水管道附件的问题
老师。请教一下一个问题,困惑了很久一直找不到标准答案。给排水里边,管道定额是包含了管道和管道附件的安装费用吗?附近主材费用是否包含在内还是要另外计算附件的主材费用?还有就是附件是否包含法兰和阀门,法兰阀门是否另外单独套定额?还有一个问题就是室外管道、管网是套第八册管道定额还是第六册工业管道定额。如果套取工业管道定额,附近和阀门这些要单独套定额计算吗?麻烦,老师解惑下,非常感谢!
如果没找到您想要的答案,试试直接提问吧!
尊敬的“{{nickname}}”,您好!
答疑解惑——建筑行业领先的互动问答平台
答疑解惑——建筑业(造价行业)领先的互动问答平台
您的问题已发布您的回答已提交
大多数问题会在7分钟内获得回答,感谢您的耐心等待
恭喜获得答题积分奖励,帮助他人,成就自己。
采纳优质答案,更可获得积分,兑换礼品哦!
高质量答案更易被采纳,获得额外高额积分奖励!
专家榜
数据更新时间 : 2026-05-22
天降福运!积分,经验值等福利在等着你哟,快来签到吧
还有0条追问正在审核中,请稍后回来查看