-
狂风卷卷
2025-11-04 01:08:27
|
北京
土建施工土建计量GTJ
|
149查看
4回答
小作坊下料就是猛(关于基础梁的)
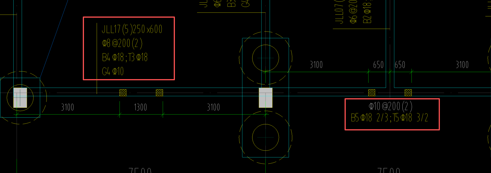
说是基础联系梁但是看配筋是基础梁,问题是右边第二跨方框有这么表示的吗?请大神帮忙揣测一下设计师的设计意图。2025-11-04 09:47:29 补充
我的意思是B和T本来就是贯通纵筋,作为一条梁,每跨都是B4C18和T3C18,何来的原位标注与之不同
全部回答
(4)
首答仅用{{minutesHtml}}
-

2025-11-04 01:34:18
-
第二跨属于梁原位标注的钢筋信息 软件里按图示的位置去梁的原位标注里对应的位置输入上去就可以
2025-11-04 06:33:51
-
新建梁--基础连系梁绘制
首次提交 2025-11-04 08:29:16 最近修改2025-11-04 10:04:52 (修改过1次)
-

2025-11-04 08:49:10
说是基础联系梁但是看配筋是基础梁,问题是右边第二跨方框有这么表示的吗?请大神帮忙揣测一下设计师的设计意图。







还有0条追问正在审核中,请稍后回来查看